RetroTehnica: Aurel Perșu și automobilul său
La 26 decembrie 1890 în Bucureşti a văzut lumina zilei Aurel Perșu inginer mecanic român, constructorul primului automobil cu profil aerodinamic din lume . Aurel Perșu a urmat Şcoala Superioară Tehnică (Tehnische Hoch Schule)din Berlin-Charlottenburg, absolvind Secţia Mecanică în 1913, ca şef de promoţie. În 1914 a fost medaliat de Ministerul Instrucţiunii Publice din Germania pentru un studiu deosebit în domeniul comportării navelor în spaţiul cosmic.

Să ne aducem aminte cu mândrie ,că în 1907 a absolvit aceeași școală politehnică și tot ca șef de promoție inventatorul avionului cu reacție, savantul de mai târziu, Henry Coandă.
Imediat după absolvirea studiilor politehnice Perșu a construit, în preajma primului război mondial, un automobil cu propulsie electrică, care este expus la Muzeul Naţional Tehnic Dimitrie Leonida din Bucureşt
Imediat după absolvirea studiilor politehnice Perșu a construit, în preajma primului război mondial, un automobil cu propulsie electrică, care este expus la Muzeul Naţional Tehnic Dimitrie Leonida din Bucureşt
Marele merit al inginerului român este acela de a fi printre primii specialiști din lume care au studiat aplicarea formei aerodinamice a corpurilor în mișcare la automobile, problemă ce-l preocupa încă din anul 1920. În urma studiilor și cercetărilor întreprinse tânărul absolvent de la Charlottenburg recomanda ca forma caroseriei automobilului să tindă spre aspectul unei jumătăți a picăturii de apă în cădere . Deşi atât
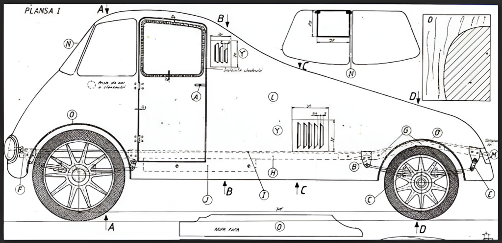
pentru standardele de atunci, dar şi pentru cele de azi, forma acestui automobil pare hilară, vorbim, de fapt, de o idee inspirată de… picăturile de apă – de unde şi denumirea uzuală a acestui automobil: Raindrop car (mașină cu formă de picătură de apă ). Automobilul preconizat de Perșu avea forma,ca în figura de mai jos, cu partea cea mai voluminoasă în față, unde se aflau locurile pasagerilor ,urmând ca în spate, und e spațiul era mult mai restrâns, să fiemontate motorul şi cutia de viteze, puterea fiind transmisă roţilor din spate. O particularitate a punții spate este lipsa diferențialului, deoarece distanța dintre roți este mică.

Pentru a reduce rezistența aerului la înaintarea automobilului, roțile erau introduse în interiorul caroseriei. La data brevetării invenției sale toate tipurile de automobile aveau roțile în afara caroseriei, cu aripi mari care pe lângă formele neadecvate, creșteau și suprafața transversală a automobilelor. Invenţia care l-a făcut celebru a fost „Automobil de formă aerodinamică cu patru roţi montate înăuntrul formei aerodinamice". Brevetul a fost obţinut în Germania la 19 septembrie 1924 cu numărul 402683, cererea de brevetare fiind adresată la 13 noiembrie 1922. Punându-și în aplicare concluziile cercetărilor sale ,a construit primul automobil cu formă aerodinamică „corectă" în perioada 1922-1924, cu bani proprii, în Germania. Caroseria a fost construită la diverse ateliere din Berlin . Automobilul are panourile caroseriei din aluminiu . Consumul de carburant a fost estimat la aproximativ 5 litri/100 km.
Motorul era amplasat în spate cu o cilindree de 1400 cmc cu 4 cilindri în linie, pe benzină. Atât motorul cât și cutia de viteze au fost produse de Automobilbau Berlin care asigurau o viteză maximă de 80 km/h. Cu toate că automobilul nu avea diferențial, virajele puteau fi luate cu 60-70 km/h fără o uzură semnificativă a pneurilor.

După finalizarea automobilului în 1923 , Aurel Perșu a efectuat „probe de anduranță" de 120000 km pe șoselele din Europa, invenția fiind brevetată și în alte țări industrializate din Vest.
Uzinele Ford și General Motors au solicitat cumpărarea brevetului invenției lui Perșu, fără însă a se angaja să construiască automobile pe baza acestui brevet, ceea ce l-a determinat pe autor să refuze propunerile primite.
Datorită formei aerodinamice și a roţilor montate înăuntrul formei aerodinamice, el a ajuns la coeficientul aerodinamic de 0,22(Cx) care şi azi este greu de atins. Practic rezistența aerului are trei direcții pe care poate acționa asupra automobilului: longitudinal(x)- Cx, transversal(y)- Cy și după axa verticală (z)- Cz. Componenta cu efect semnificativ este cea după axa longitudinală(x) deoarece aceasta coincide cu direcția de deplasare a automobilului .
Coeficientul aerodinamic (Cx ) se evaluează cu formula:
Cx = 0,16+ 0,0095. Σiaj unde j=1-9, iar iaj este indicele rezistenței aerodinamice ales potrivit cu formele diferitelor elemente ale caroseriei cum ar fi:faruri mari neîncorporate(0,07),faruri incorporate (0,02),ștergătoare de parbriz (0,07),bara din față(0,07) etc. Acest coeficient intră în formula pentru calculul rezistenței aerului : Ra =0,5. ρ. Cx.vx A
unde,
Ra- este rezistența aerului(N),
ρ – densitatea aerului în (kg/m),
vx - viteza automobilului(m/s),
A- Aria transversală maximă a automobilului(m).
Pe baza acestei formule se poate calcula puterea consumată de automobil pentru învingerea rezistenței aerului la o anumită viteză:
Pa = Ra.v ,
Pa- puterea consumată pentru învingerea rezistenței aerului (W).
Cx = 0,16+ 0,0095. Σiaj unde j=1-9, iar iaj este indicele rezistenței aerodinamice ales potrivit cu formele diferitelor elemente ale caroseriei cum ar fi:faruri mari neîncorporate(0,07),faruri incorporate (0,02),ștergătoare de parbriz (0,07),bara din față(0,07) etc. Acest coeficient intră în formula pentru calculul rezistenței aerului : Ra =0,5. ρ. Cx.vx A
unde,
Ra- este rezistența aerului(N),
ρ – densitatea aerului în (kg/m),
vx - viteza automobilului(m/s),
A- Aria transversală maximă a automobilului(m).
Pe baza acestei formule se poate calcula puterea consumată de automobil pentru învingerea rezistenței aerului la o anumită viteză:
Pa = Ra.v ,
Pa- puterea consumată pentru învingerea rezistenței aerului (W).
Două exemple cred că sunt edificatoare în acest sens:când automobilul rulează cu 100 km/h puterea necesară pentru a învinge rezistența aerului este în jur de 12 CP ca la 200 km/h puterea rezistentă a aerului să depăşească valoarea de 100 CP! În continuare sunt prezentate câteva exemple cu coeficientul aerodinamic al unor automobile din prezent.

Anterior automobilului realizat de Perșu au mai existat și alte proiecte de automobile cu profil aerodinamic. Pot fi menționate: modelul A.L.F.A 40-60 HP
Aerodinamica "Siluro Ricotti" din 1914 sau automobilul inginerului de aviație austriac Edmund Rumpler, numit "Rumpler Tropfenwagen" (mașina - picătură" în limba germană) prezentat la Berlin în 1921. Toate acestea aveau însă roțile în afara caroseriei și nu atingeau gradul de aerodinamicitate a creației lui Perșu.
Aerodinamica "Siluro Ricotti" din 1914 sau automobilul inginerului de aviație austriac Edmund Rumpler, numit "Rumpler Tropfenwagen" (mașina - picătură" în limba germană) prezentat la Berlin în 1921. Toate acestea aveau însă roțile în afara caroseriei și nu atingeau gradul de aerodinamicitate a creației lui Perșu.
În urma "testelor de anduranță" inventatorul a adus mai multe îmbunătățiri automobilului său. Aurel
Perşu a adus automobilul în România, pe care l-a donat în stare de funcționare, Muzeului Național Tehnic „Dimitrie Leonida” în anul 1969. Prototipul original nu mai funcționează, iar caroseria este deteriorată, însă poate fi văzut și astăzi la Muzeul Național Tehnic Dimitrie Leonida din București. Mai jos este prezentat automobilul din față ,lateral dreapta și spate (fotografiile au fost făcute pe 25 februarie 2022).
În urma "testelor de anduranță" inventatorul a adus mai multe îmbunătățiri automobilului său. Aurel
Perşu a adus automobilul în România, pe care l-a donat în stare de funcționare, Muzeului Național Tehnic „Dimitrie Leonida” în anul 1969. Prototipul original nu mai funcționează, iar caroseria este deteriorată, însă poate fi văzut și astăzi la Muzeul Național Tehnic Dimitrie Leonida din București. Mai jos este prezentat automobilul din față ,lateral dreapta și spate (fotografiile au fost făcute pe 25 februarie 2022).


Aurel Perșu avut o bogată activitate științifică, a brevetat diverse invenții atât în țară cât și-n străinătate dintre care aș aminti : „ Pompa combinată acționând direct fluidul ce trebuie pompat cu ajutorul unui lichid intermediar .” Publică diverse articole pe temele aerodinamicii automobilelor,a motoarelor cu ardere internă,a rezistenței materialelor în reviste prestigioase din țară si din străinătate .A a fost conferenţiar la Şcoala Politehnică din București, iar din 1938 a condus ca director general Fabrica de avioane I.A.R. Braşov. A fost scos din rândurile cadrelor universitare în 1948. A ieşit la pensie în 1950, dar a continuat să lucreze la Institutul de Documentare Tehnică din Bucureşti.
La fel ca și marele savant Henry Coandă a fost pasionat de muzică în general și de violoncel în special. A activat ca violoncelist profesionist în Orchestra Cinematografiei între 1953 - 1962 și a fost membru al Orchestrei Inginerilor și șef de partidă violoncel între 1957 și 1969.
A murit în mai 1977 în urma unui infarct cardiac provocat de dărâmarea casei sale de pe Calea Victoriei.
Meritele sale în domeniul automobilelor sunt reliefate într-o lucrare publicată în limbile germană și engleză intitulată „Automobile aerodinamice în Europa și în Statele Unite" și un capitol întreg îi este dedicat care începe astfel: „Și România a avut un specialist în aerodinamică, un strălucit inginer care trebuia de mult trecut în elita mondială a tehnicienilor . Numele lui este Aurel Perșu".
A murit în mai 1977 în urma unui infarct cardiac provocat de dărâmarea casei sale de pe Calea Victoriei.
Meritele sale în domeniul automobilelor sunt reliefate într-o lucrare publicată în limbile germană și engleză intitulată „Automobile aerodinamice în Europa și în Statele Unite" și un capitol întreg îi este dedicat care începe astfel: „Și România a avut un specialist în aerodinamică, un strălucit inginer care trebuia de mult trecut în elita mondială a tehnicienilor . Numele lui este Aurel Perșu".
Bibliografie :
Aurel Perșu:Inventator al automobilului aerodinamic,Editura tehnică 1996 ;
Automobilul în România-Istorie și tehnică,lucrare coordonată de Prof. Univ.-dr. ing. Chiriac Vasiliu,Editura „Flux" București 1994 ;
Personalități românești ale științelor naturii și tehnicii-dicționar ,Editura Științifică și Enciclopedică București, 1982 ;
Dinamica autovehiculelor pe roți, lucrare coordonată de Prof. Univ.-dr. ing. Marin Untaru , Editura didactică și pedagogică București,1981.
Aurel Perșu:Inventator al automobilului aerodinamic,Editura tehnică 1996 ;
Automobilul în România-Istorie și tehnică,lucrare coordonată de Prof. Univ.-dr. ing. Chiriac Vasiliu,Editura „Flux" București 1994 ;
Personalități românești ale științelor naturii și tehnicii-dicționar ,Editura Științifică și Enciclopedică București, 1982 ;
Dinamica autovehiculelor pe roți, lucrare coordonată de Prof. Univ.-dr. ing. Marin Untaru , Editura didactică și pedagogică București,1981.